Trong thời hiện đại ngày nay, những tòa nhà cao tầng, chung cư mọc lên rất nhiều. Vậy nên rủi ro hỏa hoạn là vấn đề được đặt lên hàng đầu. Việc lắp đặt cửa composite chống cháy lan đã trở thành lựa chọn thông minh để bảo vệ gia đình trước rủi ro hỏa hoạn. Với cấu tạo đặc biệt nên cửa có khả năng chịu nhiệt tốt. Ngoài ra cửa composite còn có độ bền vượt trội, tính thẩm mỹ cao và có sự ổn định hơn so với nhiều loại của truyền thống.
Cửa composite chống cháy lan là gì?
Cửa composite nên khả năng chịu nhiệt và kìm hãm tốc độ cháy lan lên đến 120 phút. Đây là khoảng thời gian tốt cho các thành viên thoát hiểm an toàn, ngoài ra còn giúp giảm lửa sang các phòng khác giúp bảo vệ an toàn cho các thành viên trong nhà, hạn chế tối đa thiệt hại tài sản.
Nhờ đó, cửa composite chống cháy lan trở thành sự lựa chọn ưa thích cho các công trình như nhà ở, chung cư, khách sạn, homestay, căn hộ mini, khu công nghiệp …
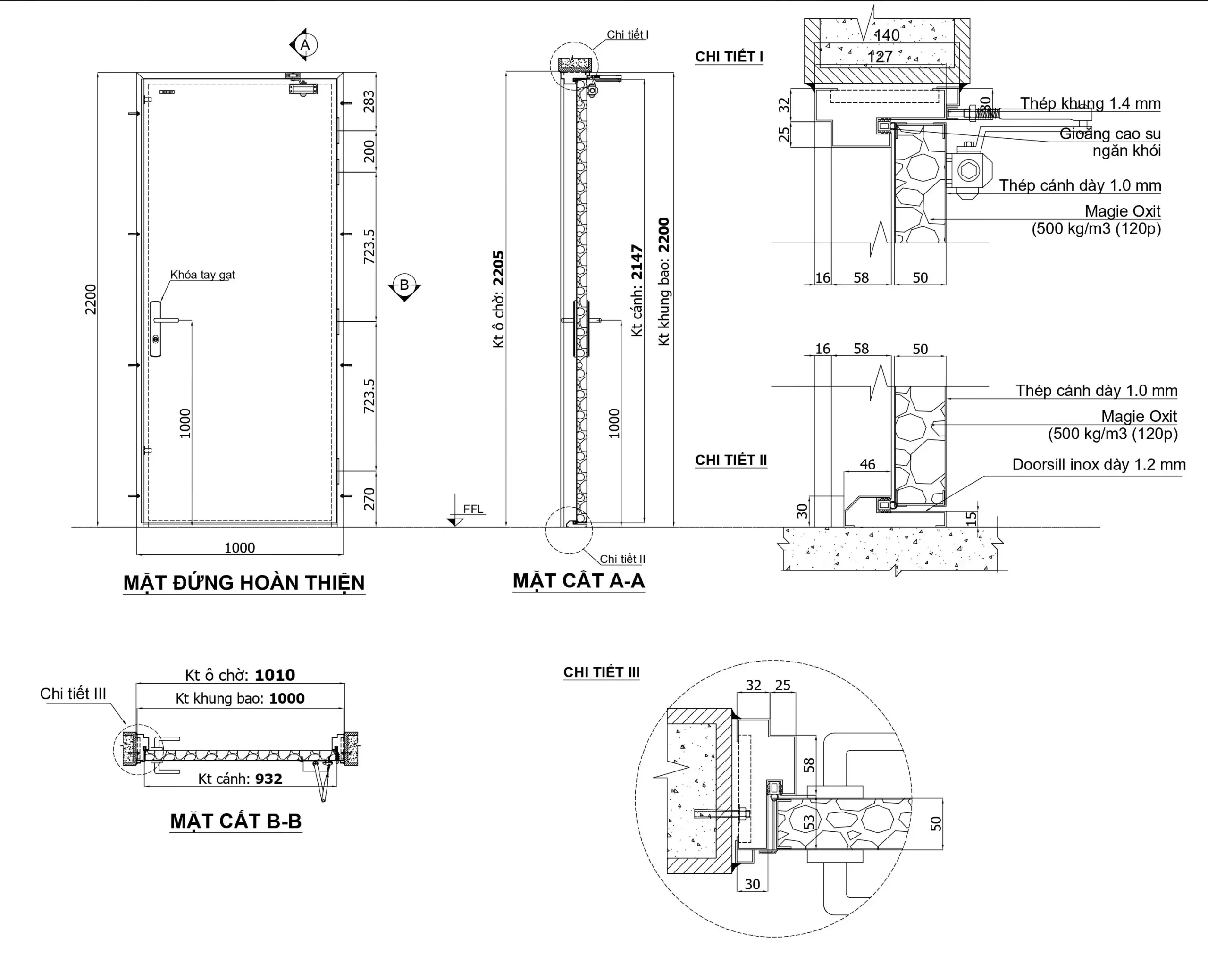
Cấu tạo cửa composite chống cháy lan
Cửa composite chống cháy lan được nâng cấp nhiều lớp bảo vệ, mỗi lớp đảm nhiệm một vai trò riêng để ngăn lửa, chống khói và giảm được nhiệt và lửa sang khu vực khác. Dưới đây là một số cấu tạo tiêu chuẩn của cửa composite chống cháy:
a. Lõi chống cháy lan
Có ba loại lõi phổ biến:
Lõi MgO ( Magie Oxide Board ): có khả năng chịu lửa rất cao, loại vật liệu được làm từ khoáng chất tự nhiên vô cơ.</span> Thành phần chính là MgO không chứa chất độc hại và thân thiện với môi trường nên khi có hỏa hoạn sẽ tránh khỏi việc sinh ra khói độc, gây hại đến sức khỏe. Được sử dụng cho các dòng cửa có yêu cầu EI60 – EI120.
- Lõi MgO phụ thuộc phần lớn vào độ dày (mm) và tỷ trọng (độ đặc) nên giá sẽ khác nhau.
Lõi Glasswool / Rockwool:
| Đặc điểm | Lõi Glasswool | Lõi Rockwool |
| Khả năng chống cháy | Khá. Chịu nhiệt khoảng 350°C – 450°C. Không cháy lan nhưng sẽ bị co ngót và biến dạng nếu nhiệt quá cao | Tuyệt đối. Chịu nhiệt lên tới 1000°C – 1200°C. Được dùng cho các vách ngăn có yêu cầu chống cháy cao. |
| Giá thành | Rẻ hơn | Đắt hơn (khoảng 20 – 40% tùy loại) |
Lõi Honeycomb : đây là loại vật liệu lõi, có cấu trúc là hình lục giác (tổ ong) được làm từ giấy kraft có tẩm hóa chất chống cháy chuyên dụng, được ứng dụng rộng rãi trong việc sản xuất cửa composite chống cháy. Khả năng chống cháy thấp, bản thân giáy thì sẽ cháy nhưng với cấu trúc tổ ong hạn chế sự lưu thông không khí, làm chậm quá trình cháy lan. Trong lượng siêu nhẹ nhưng độ cứng cao, thân thiện với môi trường. Giá thành trung bình, tùy vào loại sẽ có giá khác nhau.
b. Khung bao và cánh cửa
Khung bao và cánh cửa composite chống cháy lan được làm từ nhựa gỗ composite (WPC) ép đùn kết hợp phụ gia tăng cứng.
Nhờ vậy mà cửa có các ưu điểm vượt trội như không cong vênh, mối mọt, chống nước 100% nên sẽ tránh việc hút ẩm làm hư cửa, khả năng chịu lực rất tốt nên phù hợp lắp ở mọi nơi trong nhà hoặc cửa chính của căn hộ, khách sạn,…
Ngoài ra, với cấu trúc đặc biệt cửa composite sẽ không bị giãn nở khi nhiệt độ thay đổi, hạn chế việc biến dạng khi gặp lửa.

c. Ron nở chống cháy và phụ kiện Fire – rated
Ron nở chống cháy: đây là bộ phận bắt buộc của cửa composite chống cháy lan. Sản phẩm giúp cửa tự nở khi gặp nhiệt, hỗ trợ bịt kín mọi khe hở giữa, ngăn được khói nóng, khí độc, lửa lan.
Mỗi bộ cửa chống cháy đạt chuẩn cần trang bị đầy đủ phụ kiện đạt chứng nhận Fire – rated. Phụ kiện fire rated (bản lề, khóa, chốt an toàn) phải chịu được nhiệt độ cao mà không bị tan chảy, biến dạng làm rớt cánh cửa.
Ưu điểm nổi bật của cửa composite chống cháy lan
a. An toàn khi gặp hỏa hoạn
Cửa composite giúp trì hoãn, kìm hãm đi sự lan nhanh của lửa và khói độc ( yếu tố nguy hiểm có thể gây nổi trong thời gian ngắn ). Ngoài ra, cửa sẽ hạn chế sự truyền nhiệt, giúp giữ cho nhiệt độ trong phòng an toàn lâu hơn, từ đó tạo ra một khoảng “thời gian vàng” để có thể sơ tán và xử lý sự cố.
Đây là giải pháp an toàn được ưu tiên và khuyến khích sử dụng tại các tòa nhà cao tầng như chung cư, nhà phố hoặc các khu công nghiệp,…

b. Độ bền vượt trội
Chất liệu composite có tuổi thọ cao hơn từ 10 – 20 năm so với nhiều dòng cửa truyền thống. Cửa bền bỉ, không cong vênh hay mối mọt khi gặp độ ẩm hay thời tiết bất thường. Phù hợp lắp ở nhiều nơi kể cả nhà vệ sinh hay cửa ở hàng lang chung cư,…
Khả năng chịu lực tốt, hạn chế bị móp méo film trong quá trình sử dụng. Nhờ đó, cửa composite được ưa chuộng tại các gia đình hay các công trình có quy mô lớn.
c. Tính thẩm mỹ cao
Với bề mặt phủ film PVC nịnh mắt. Tạo hình vân gỗ 3D, bền màu kết hợp đa dạng màu sắc như nâu gỗ trầm, trắng,… Kiểu dáng phong phú phù hợp với nhiều nội thất từ có phong cách tối giản, tân cổ điển,…

d. Giá cả hợp lý
Với các lợi ích, cửa composite chống cháy lan vẫn có mức giá hợp lý và dễ tiếp cận. Khi lắp cửa này sẽ tiết kiệm được nhiều chi phí bảo trì vì cửa có thể:
- Kìm hãm cháy lan
- Ngăn khói độc
- Khả năng chống nước tốt
- Sự bền bỉ và giữ được form dáng lâu dài từ 10 – 20 năm
Với chi phí cực kỳ hợp lý không như các dòng cửa thép hoặc cửa gỗ công nghiệp thông thường. Vì vậy, đây là sự lựa chọn tốt giữa hiệu năng, độ bền, sự an toàn tuyệt đối trong các công trình.
Kết luận
Cửa composite chống cháy lan không chỉ nâng cao tính an toàn cho không gian sống mà còn đem đến sự tinh tế cho gia đình bạn. Ngoài ra với chi phí tối ưu và độ bền vượt trội thì cửa composite đang trở thành sự lựa chọn hoàn hảo cho các công trình hiện đại. Và tại Shopdoor, khách hàng còn được hỗ trợ miễn phí lắp đặt bởi đội ngũ thợ dồi dào kinh nghiệm, mang lại sự an tâm và sự chất lượng cho mọi công trình.















































